Menu

1027

Navile

Categoria

Masterplan e nuova urbanizzazione

Cliente

Comune di Bologna

Luogo

Bologna

Status

Concorso

Anno

2024

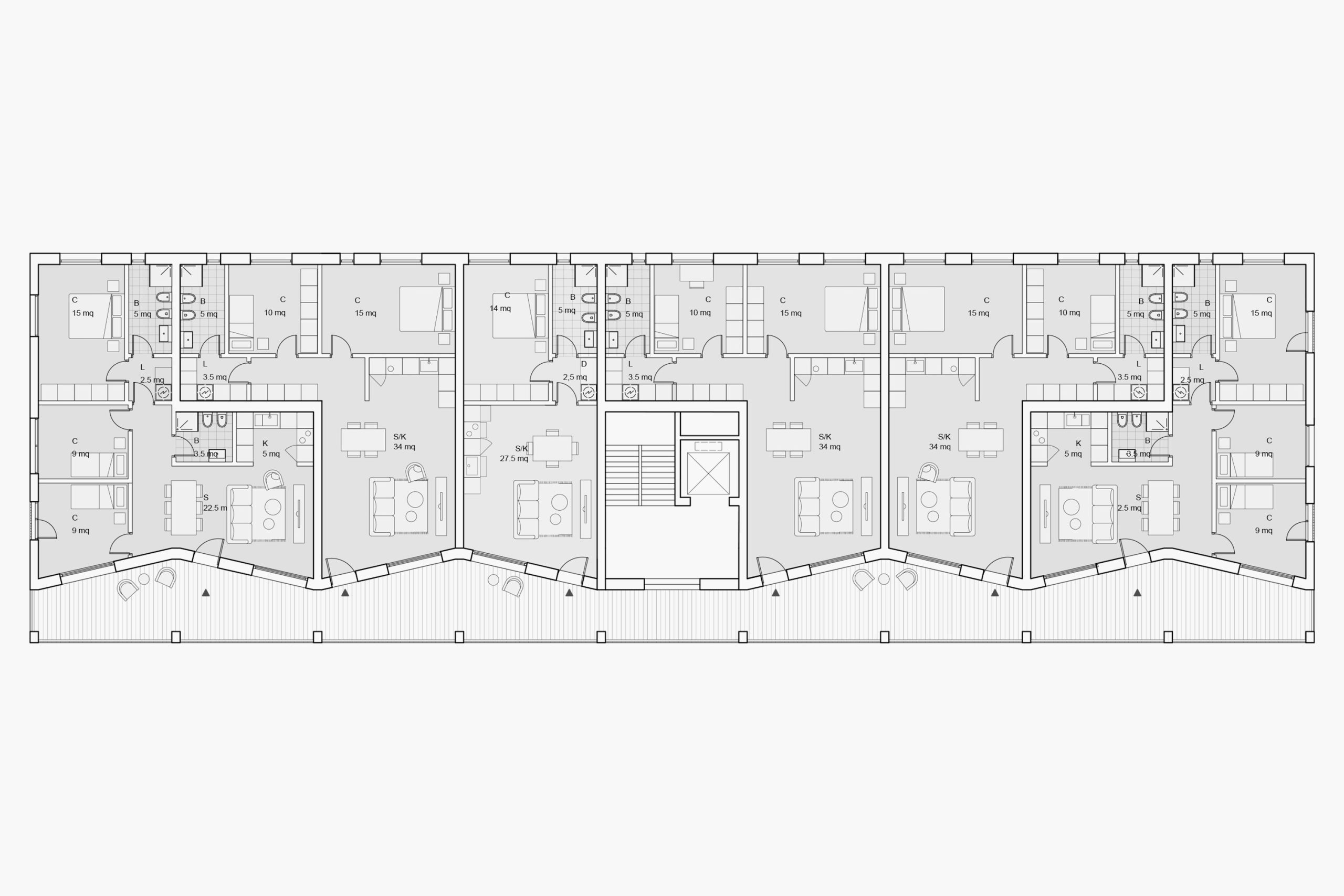
Il concorso per l’inserimento di alloggi residenziali sociali nel comparto Bertalia Lazzaretto e la riorganizzazione parziale del masterplan di tale area hanno rappresentato un’opportunità per affrontare le sfide abitative della città di Bologna. La città, in crescita e con costi abitativi in aumento, deve rispondere alla crescente domanda di case, che include non solo persone economicamente fragili ma anche studenti e lavoratori con redditi medi. Il comparto Bertalia Lazzaretto deve fungere da collegamento tra aree diverse: a nord Bertalia, a est Lame, a ovest il Fiume Reno e a sud il fascio ferroviario. Con la crescita della città metropolitana, è essenziale sviluppare aree periferiche e policentriche per offrire attrattive alternative al centro storico. Il progetto mira a compensare la distanza dal centro con spazi privati, pubblici e semipubblici di alta qualità. Un parco centrale funge da cuore della nuova area, promuovendo uno stile di vita che integra socialità e sostenibilità, e cercando di creare un microcosmo attrattivo al di fuori del centro di Bologna.

Portico-o-scaled
Parco-o-scaled
Portico-v-scaled
Parco-v-scaled
Interna-o-scaled
Parco2-o-scaled
Tecnico4-scaled
Tecnico1-scaled
Tecnico5-scaled
Tecnico7-scaled
Tecnico3-scaled
Tecnico2-scaled
Tecnico6-scaled

(Close)
Panoramica privacy

This website uses cookies so that we can provide you with the best user experience possible. Cookie information is stored in your browser and performs functions such as recognising you when you return to our website and helping our team to understand which sections of the website you find most interesting and useful.